
SPORTTOREN, BRUSSEL
in samenwerking met DIERENDONCK BLANCKE ARCHITECTEN + ROBBRECHT & DAEM
Ney&partners (stabiliteit), jzh (technieken + EPB), Daidalos peutz (AKOESTIEK), das bauer kabinett (BIM, budget)
Ney&partners (stabiliteit), jzh (technieken + EPB), Daidalos peutz (AKOESTIEK), das bauer kabinett (BIM, budget)
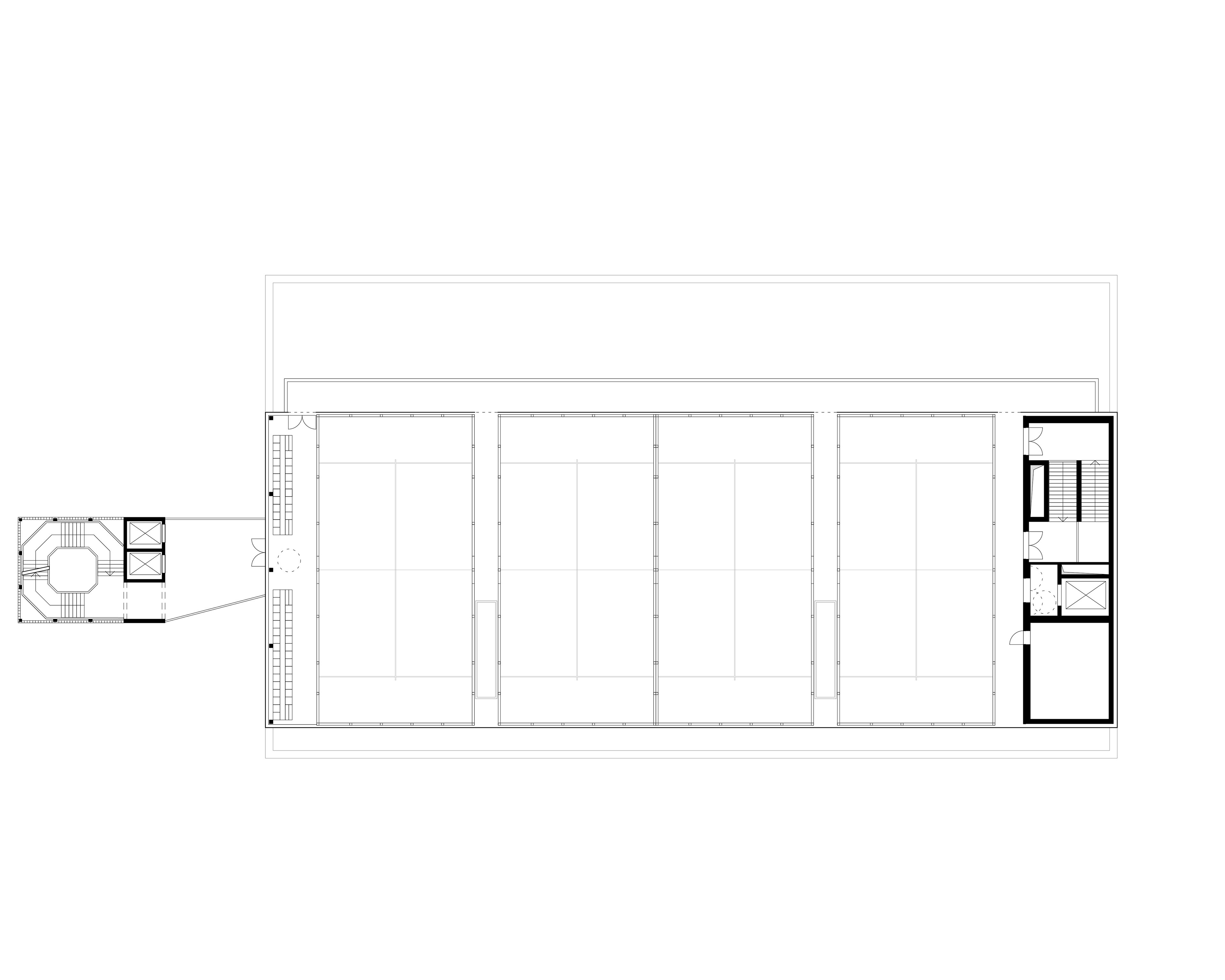
Op de oevers van het kanaal dat door Brussel loopt, combineert dit gelaagde project een turnzaal, 16 m hoge indoor & outdoor klimfaciliteiten , een polyvalente sporthal en daarbovenop padel velden. Het doel van het ontwerp is zich in te schrijven in de specifieke context en zo de samenhang van de kanaalzone te vergroten, haar identiteit te versterken en extra kwaliteit te geven aan de openbare en open ruimtes. Een openbaar balkon, een kiosk, een uitkijkpunt en een cafétaria kunnen een grote verscheidenheid aan sporters en bezoekers aantrekken. Ook diegene zonder lidkaart kunnen mee genieten van de levendige sfeer die het project zal brengen.
De voorgestelde draagstructuur heeft een iconische expressie die voortkomt uit de technische beperkingen op de site (een ruimte vrijhouden voor onderhoud aan de kade en vermijden dat funderingen bovenop de ondergrondse Zenne komen aan de andere zijde van het terrein). De structuur definieert de interieurs en de openingen in de gevel. Ze is zowel logisch als genereus genoeg om in de toekomst een grote verscheidenheid aan andere invullingen te huisvesten.
De luifels op de benedenverdieping en de terug gelegen gevel verankeren het gebouw op de site naast de draaikom en de drukke weg die het terrein begrenst. Wij zien grote kwaliteit in het ontwerp van een verfijnde gevel met een aantal opmerkelijke openingen die het gebouw een herkenbare en unieke uitstraling geven. We halen licht naar binnen en bieden uitzicht waar dat past en stellen daarom een financieel, energetisch en ecologisch verantwoord project voor. De grotendeels ondoorzichtige gevel en de vrijstaande toren met passerelles leggen een relatie met de pakhuizen en industriële gebouwen die kenmerkend zijn voor de Noordwijk en de kanaalzone.









