fase bouwaanvraag
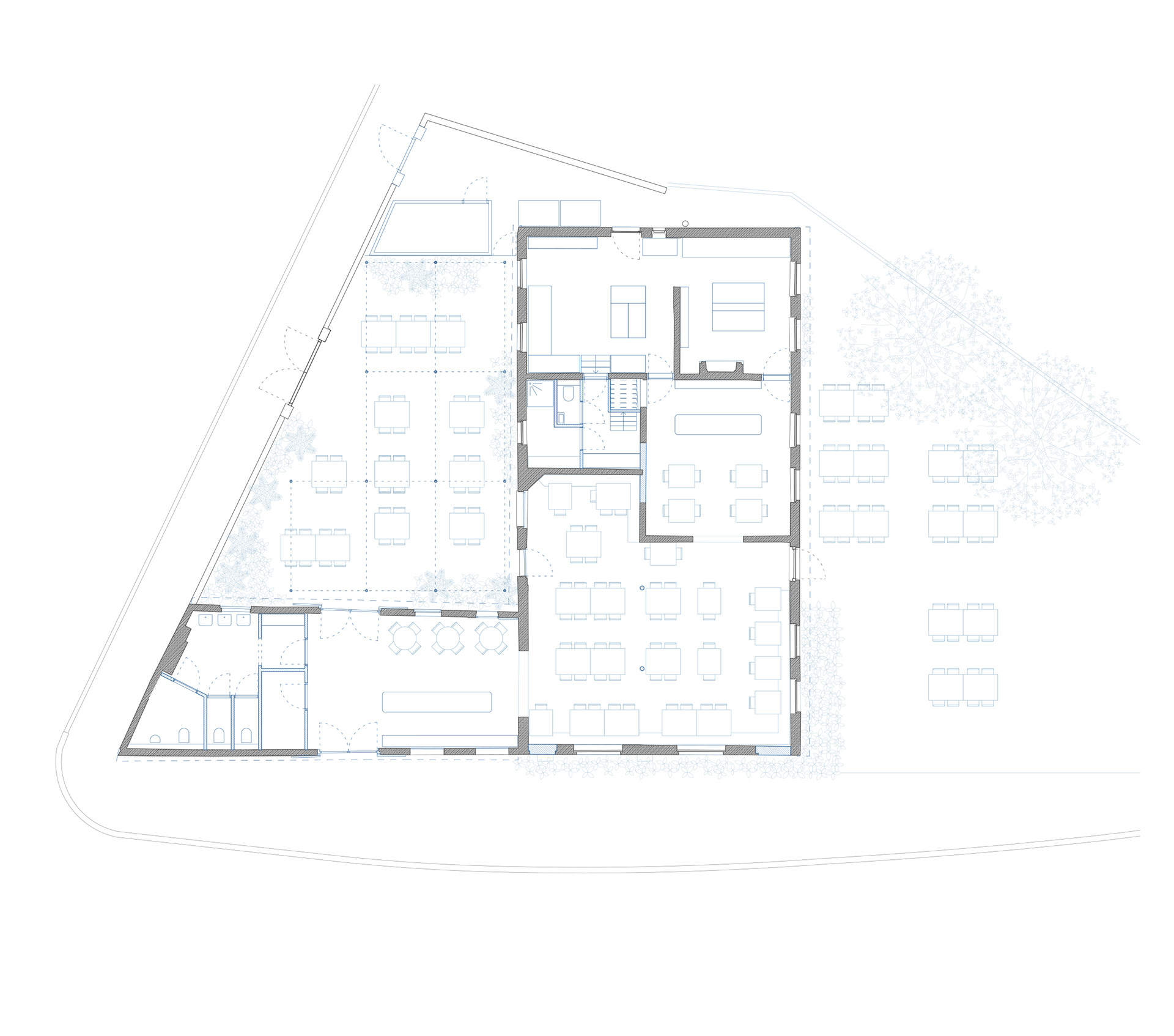
opp. gebouw 260m2 - opp. terrein 650m2
opp. gebouw 260m2 - opp. terrein 650m2
Een beschermd pand nabij het centrum van Gullegem werd doorheen de jaren verschillende keren verbouwd, zonder daarbij rekening te houden met de bijzondere (erfgoed)waarde. We stelden daarom een voorafgaande 'ontmantelingsfase' voor om recente afwerkingen te verwijderen en originele, waardevolle structuren terug zichtbaar te maken en te inspecteren.
Het voorliggende ontwerp geeft een karaktervol antwoord op de vraag van de bouwheer om een flexibel te verhuren ruimte voor kleinschalige events of borrels te voorzien. We laten het gebouw & zijn geschiedenis spreken door de ruimte niet verder af te werken. Het ruwe & pure van het gebouw zetten we in de verf. Nieuwe structuren en meubelstukken geven cachet aan de ruimtes.
Gasten komen binnen via een ontvangstruimte in het bijgebouw met zicht op een vernieuwd terras. In het hoofdvolume worden twee wanden vervangen door een kolommen- en balkenstructuur die de historische ritmering volgt. Een nieuwe 'grote zaal' biedt plaats aan een 70-tal couverts of een staand feest voor een 150-tal personen en geeft op deze manier een nieuwe adem aan het gebouw. Twee vaste barmeubels vormen een verfijnd accent in de interieurs.

Zicht vanuit de aperitief-ruimte naar de grote zaal en de terrassen met nieuwe groenaanleg.

Zicht in de grote zaal met nieuwe kolommen uit geborsteld staal en een gerenoveerd eikenhouten plafond met nieuwe akoestische invulpanelen.

Opmeting bestaande toestand
Het voorstel zet ook in op de omgeving rondom door twee terrassen elk een duidelijke sfeer mee te geven. Het terras gelegen naast een drukkere invalsweg wordt ontworpen als plein. Het dorp krijgt terug zicht op de volledige lengte van de historische gevel. Hier kan Gullegem Koerse worden gevierd of een foodtruck geparkeerd. Een nieuwe staalstructuur waarop planten groeien geef het tweede terras een gezellig karakter om in alle rust te tafelen. Door in te zetten op de ruimte rondom krijgt het project een nieuw élan naar de buurt toe.

Plan voorontwerp